OWCN-TU/TC系统
OWCN-TU/TC SYSTEM
产品说明 PRODUCT DESCRIPTION
TU/TC系列条型金属板都是标准型天花板,多种宽度,而且长度可以定尺加工,因其线条流畅被用在车站、地铁、机场等大型项目上较多。(TU为直角) (TC为斜角)。
TU/TC系列金属吊顶有三种:面板光板、标准孔面板、微孔面板。
●TU/TC Plank System is a standard panel.
●It can be easily adapted to suit large projects such as station, metro and airport, etc. and unique aesthetical requirements by various panel sizes.(TU is rectangular angle and TC is bevel angle.)
●Un-perforated panels, standard perforated panels and micro perforated panels for options.
M系列条板 M PLANK SYSTEM

TU/TC系列条板选用附件表 TU/TC PLANK SUSPENSION SYSTEM

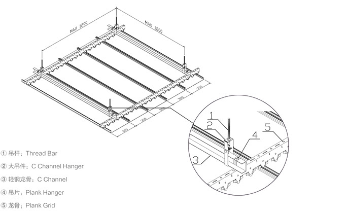
安装结构示意图 INSTALLATION AND ASSEMBLY DETAIL

OWCN-TG系统
OWCN-TG SYSTEM
产品说明 PRODUCT DESCRIPTION
产品说明:TG系列条型金属板都是标准型天花板,多种宽度,而且长度可以定尺加工,
板面可冲孔,因其线条流畅被用在车站、地铁、机场等大型项目上较多。
●TG Plank system is a standard panel.
●It can be easily adapted to suit large projects such as station, metro and airport, etc. and unique aesthetical requirements by various panel sizes.
M系列条板 M PLANK SYSTEM

TG系列条板选用附件表 TG PLANK SUSPENSION SYSTEM

安装结构示意图 INSTALLATION AND ASSEMBLY DETAIL



备案号:
关注世界杯平台官方微信