金属雕刻异形孔系统
METAL SCULPTURE ABNORMITY PERF. SYSTEM
产品说明 PRODUCT DESCRIPTION
金属雕刻板是经特殊图层处理过的优质雕刻饰面金属板,由于墙板本身具备着保温隔热、防水阻燃、轻质抗震、施工便捷、隔音降噪、绿色环保、美观耐久等特性,同时因其板体组装方式简单实用,不受季节环境限制,因此安装使用非常安全方便。百余种浮雕花纹和色彩有百余种的搭配组合。豪华美观的装饰效果,使建筑突显档次与品位。简便灵活的拆装方式,使墙面设计搭配的更换轻而易举。该板材既适用于新建的砖混结构、框架结构、钢结构、轻体房等类型的建筑内外墙装饰,也适用于既有建筑的装饰节能改造,以及室内外装饰。
Sculpture metal panel is a kind of good quality sculpture decoration metal by special process, due the wall panel possess the characteristics of heat insulation, water and flame proof, light and anti-seismic, easy installation, acoustic insulation and noise reduction, green and environmental protection, pretty appearance and durable, etc., at the same time, the installation is very easy and quick and it is not restricted by the season and environment.
Hundreds of relief patterns and colors can have hundreds of mock-up. Luxurious and pretty decoration effect can highlight the building’s taste and grade. Simple and flexible mock-up pattern make the wall panel’s design collocation of replacement easily. This material not only suits for buildings’ interiors and exteriors wall panel decoration, i.e. newly-built brick-concrete structure, frame structure, steel structure and light house, etc., but also suits for buildings’ decoration and energy-saving reconstruct and indoor and outdoor decoration.
安装节点 INSTALLATION DETAIL

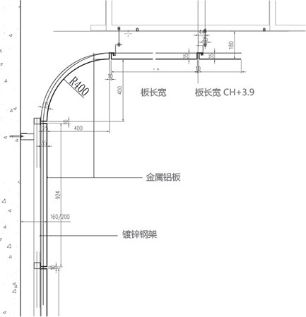
加工图 PROCESSING DETAIL

金属雕刻浮雕系统
METAL SCULPTURE RELIEF SYSTEM
产品说明 PRODUCT DESCRIPTION
浮雕是雕刻的一种,雕刻者在一块平板上将他要塑造的形象雕刻出来,使它脱离原来材料的平面。浮雕是雕塑与绘画结合的产物,用压缩的办法来处理对象,靠透视等因素来表现三维空间,并只供一面或两面观看。浮雕一般是附属在另一平面上的,因此在建筑上使用更多,用具器物上也经常可以看到。由于其压缩的特性,所占空间较小,所以适用于多种环境的装饰。
Relief is a kind of sculpture, the graver sculptures the imagine modeled in a piece of plate and separates it from raw materials’ flat. It is a result of combination of sculpture and painting, dealing with the subject by compressed method and displaying 3D space by perspective factor, etc. and only providing observation of one side or two sides. Relief usually affiliates in another flat, so this is applied in buildings, also this is able to see in utensil. It is suitable for various environments’ decoration due to the nature of its compression and occupying less space.
金属雕刻抽槽系统
METAL SCULPTURE SLOT SYSTEM
产品说明 PRODUCT DESCRIPTION
金属雕刻抽槽板是由高纯度铝基材,数控精密加工而成,具有优越的使用性能,该板吸音、隔音效果俱佳,防火性能良好。表面色泽光亮、均匀,时尚感强,给人以强烈的视觉冲击。
加工需要进口设备,多重工艺处理,采用进口金刚石布轮表面抽槽,在经压型、滚涂等多种化学处理而成。外表时尚美观,使用性能优越,其材料外观具有非常强的金属质感,纹理清淅、均匀具有超强的耐温、耐候、防火性能,而且耐污易洁,是当今时尚流行的新型高档装饰材料,特别适用于高档的吊顶及墙面装饰。
Metal sculpture slot panel is a high fineness aluminum base material and processed by CNC precision machining, it has superior performance with better acoustic absorption and sound insulation effect and good fire prevention performance. The color is even and the panel has gloss surface and strong fashion sense gives people strong visual impact.
Processing needs imported equipment and multiple processing, adopting imported diamond cloth roller slot and a variety of chemical treatment including pressing & coating, etc. With fashion appearance and superior performance, which possess much stronger metallic material appearance, clearness and even texture has excellent performance of temperature resistance, weather-resistant and fire prevention and pollution. It is a new type high grade decoration material in current society, especially suits for top grade ceilings and wall panels.


备案号:
关注世界杯平台官方微信