外墙板系统
EXTERNAL WALL PANEL SYSTEM
产品说明 PRODUCT DESCRIPTION
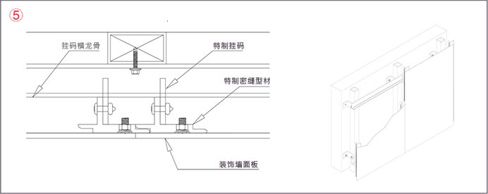
外墙板采用3.0mm厚铝板或蜂窝板,表面氟碳喷涂处理保证10年不退色。角码错缝安装,板与板间之留10-15mm硅胶缝。
External Wall Panel adopts 3.0mm thickness aluminum or honey-comb panel, surface finish is PVDF coating can guarantee 10 years warranty. Corners are installed by staggered joints and the silicone seam is within 10-15mm between panels.
外幕墙立体示意图 EXTERNAL CURTAIN WALL STEREO DETAIL
外墙板系统
EXTERNAL WALL PANEL SYSTEM
产品说明 PRODUCT DESCRIPTION
外墙板采用3.0mm厚铝板或蜂窝板,表面氟碳喷涂处理保证10年不退色。角码错缝安装,板与板间之留10-15mm硅胶缝。
External Wall Panel adopts 3.0mm thickness aluminum or honey-comb panel, surface finish is PVDF coating can guarantee 10 years warranty. Corners are installed by staggered joints and the silicone seam is within 10-15mm between panels.
内墙板系统
INTERIOR WALL PANEL SYSTEM
产品说明 PRODUCT DESCRIPTION
内墙铝板一般采用2.0-3.0mm铝板或1.0-1.5mm钢板。表面多用粉末喷涂处理。
板面过大加筋种钉处理。圆弧板采用弧形加筋定位焊接。
Aluminum Interior Wall Panel adopts 2.0-3.0mm thickness aluminum or 1.0-1.5mm thickness steel, surface finish is PVDF coating. The panel should be handled by reinforcement and driven in a nail. The arc panel should be adopted fixed-position welding by arc-shaped reinforcement.
内墙示意图 INTERIOR CURTAIN WALL STEREO DETAIL







备案号:
关注世界杯平台官方微信