卡扣式OWCN-FK系统
OWCN-FK CLIP IN SYSTEM
产品说明 PRODUCT DESCRIPTION
此系列产品安装采用嵌入式,折边嵌在暗架龙骨里,使结构更加牢固,板缝更加笔直。若折边采用倒角,使吊顶轮廓线更加清晰,整体显得美观大方。有光板面板、标准孔面板、微孔面板供选择。
● Concealed suspended system for monolithic effect.
● Make the structure more fastness and the panel’s gap more straight
● The edge adopted with chamfer, the ceiling profile more clear.
● Un-perforated panels, standard perforated panels and micro perforated panels for options.
卡扣式系列铝合金矩形板 ALUMINUM CLIP IN SYSTEM

卡扣式系列矩形板选用附件表 CLIP IN SUSPENSION SYSTEM

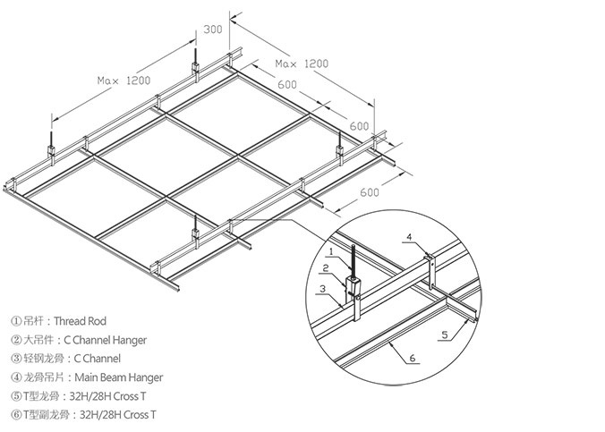
安装结构示意图 INSTALLATION AND ASSEMBLY DETAIL


铺放式OWCN-FP系统
OWCN-FP SYSTEM
产品说明 PRODUCT DESCRIPTION
铺放式方板采用搁式结构,施工方便,无需任何工具,每件可多次重复拆装。明龙骨中黑色凹槽线与白色方板搭配,使吊顶显得明快、色彩鲜明。有光板、标准孔面板、微孔面板供选择。
● Standard grid systems, simple accessibility
● Contemporary appearance
Un-perforated panels, standard perforated panels and micro perforated panels for options.
明架方板 LAY IN PANEL

明架方板选用附件表 LAY IN SUSPENSION SYSTEM

安装结构示意图 INSTALLATION AND ASSEMBLY DETAIL

悬挂式OWCN-FX系统
OWCN-FX SUSPENDED SYSTEM
产品说明 PRODUCT DESCRIPTION
悬挂式系统采用勾挂结构,施工方便,每件可多次重复拆装。
有光板、标准孔面板、微孔面板供选择。
● Hook-on grid systems, simple accessibility
●Un-perforated panels, standard perforated panels and micro
perforated panels for options.
悬挂系列勾挂板 HOOK-ON PANEL

选用附件表 HOOK-ON SUSPENSION SYSTEM

安装结构示意图 INSTALLATION AND ASSEMBLY DETAIL



备案号:
关注世界杯平台官方微信